
Rayna Hao
Senior Relationship Manager
**Scheduling your property inspection is now a breeze! Simply click on the "Book an Inspection" or "Request a Time" button to secure your appointment. You'll instantly receive a confirmation and be kept up-to-date with any alterations or cancellations concerning your scheduled visit. Please be aware, inspections may be subject to cancellation if no bookings are registered. Make your booking today and take the first step in finding your ideal home**
Perfectly positioned just moments from Glenferrie Road’s vibrant shopping strip, cafés, restaurants, Swinburne University, and excellent public transport options including Glenferrie train station and trams, this stylish apartment offers the ultimate in convenient inner-city living.
Enjoy access to a communal terrace with BBQ facilities, ideal for entertaining or relaxing on warm evenings.
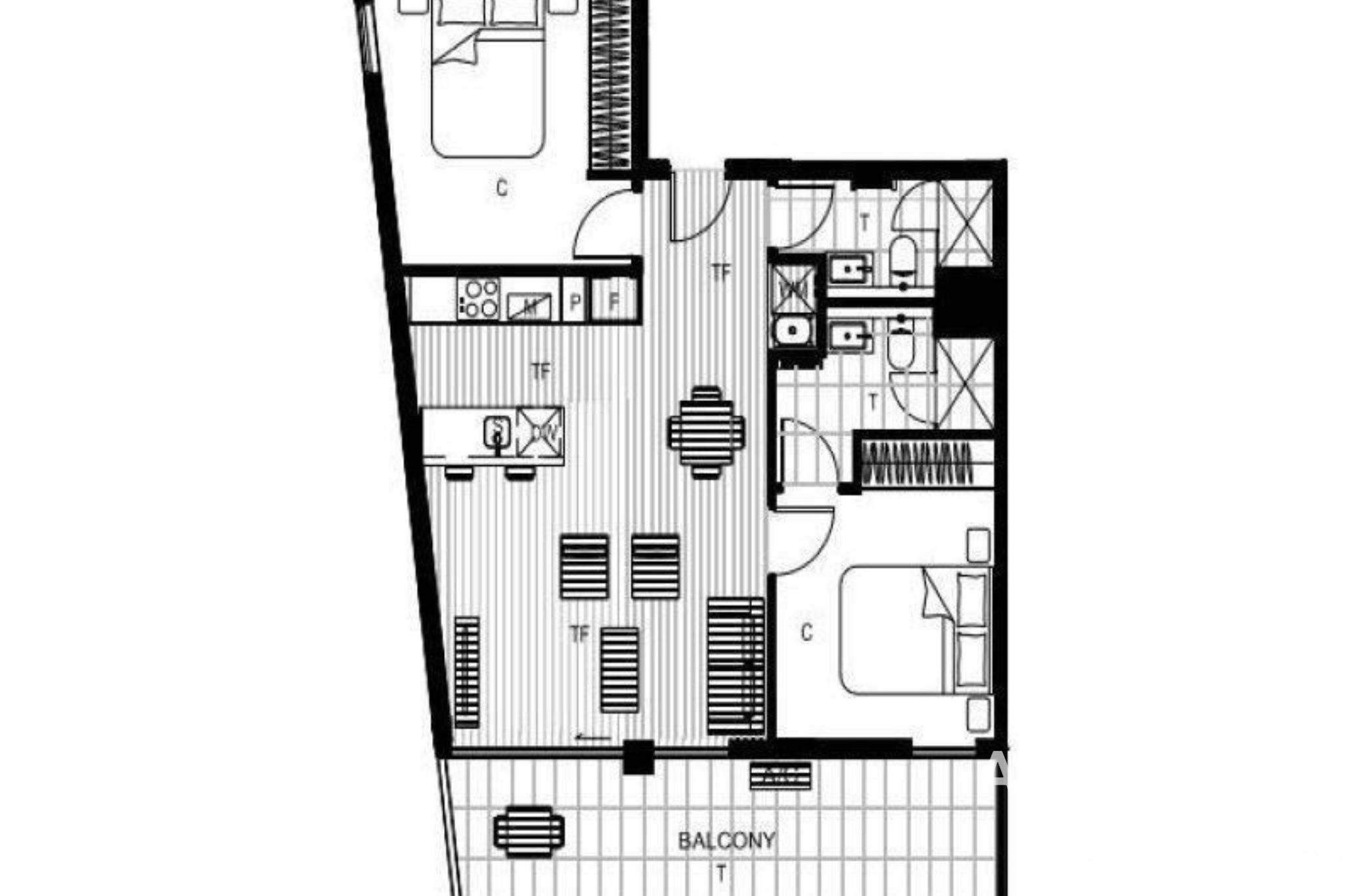
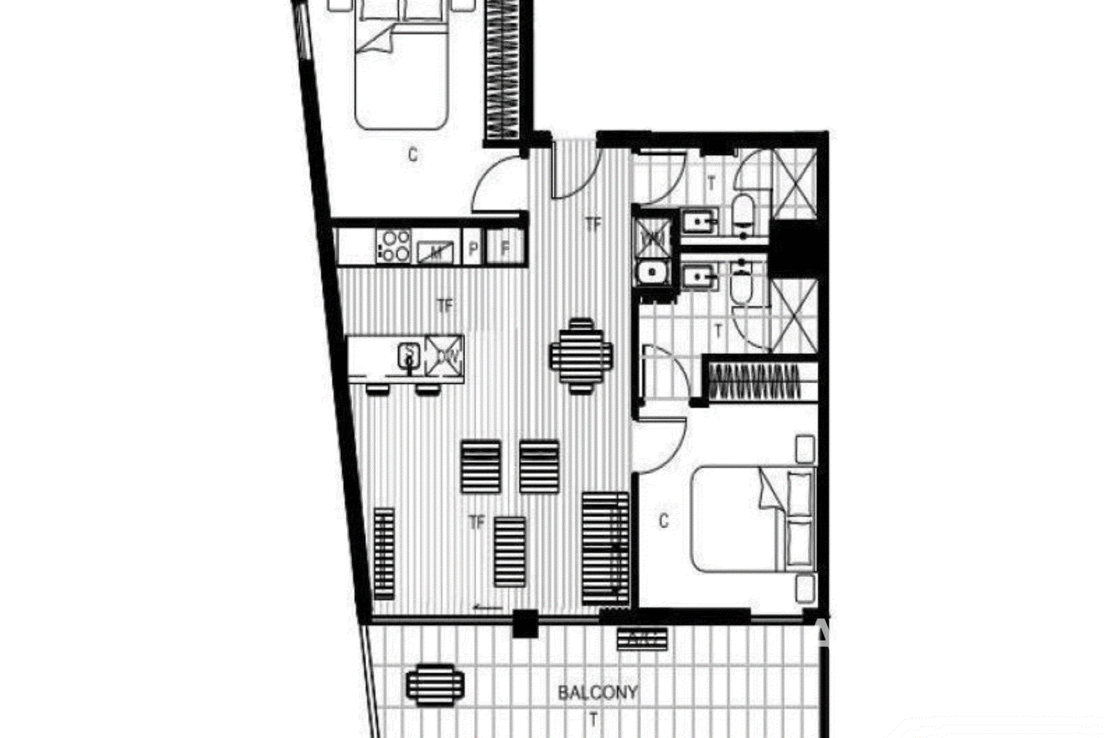
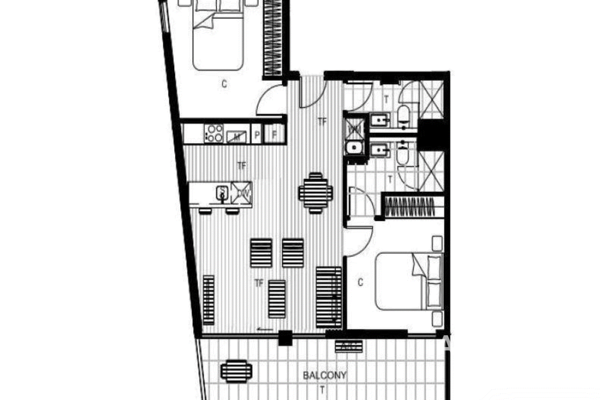
The apartment features secure video intercom entry and a spacious open-plan kitchen, living, and meals area that flows onto a private balcony with stunning views of the city skyline. The modern kitchen is equipped with stone benchtops and a dishwasher.
There are two generously sized bedrooms, both with built-in robes, including a master bedroom with a private ensuite. The apartment also includes a central bathroom, a European-style laundry, split system heating and cooling for year-round comfort, and secure parking for one vehicle with lift access to the apartment.
"Distance" refers to the straight line between the property and the school address on our database. We recommend contacting schools directly regarding zoning and admissions.
One moment while I search our listings...