
Alex Deng
Leasing Specialist
**Scheduling your property inspection is now a breeze! Simply click on the "Book an Inspection" or "Request a Time" button to secure your appointment. You'll instantly receive a confirmation and be kept up-to-date with any alterations or cancellations concerning your scheduled visit. Please be aware, inspections may be subject to cancellation if no bookings are registered. Make your booking today and take the first step in finding your ideal home**
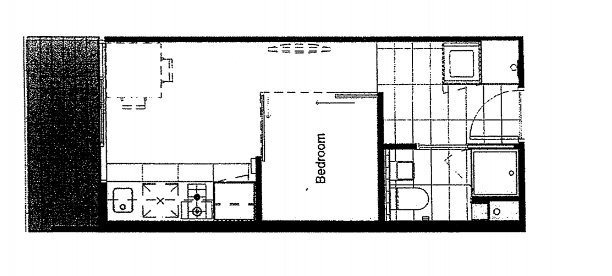
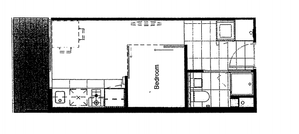
Situated in a highly sought-after location directly opposite the famous Queen Victoria Market, this fully furnished Studio apartment in Franklin Street is only a few minutes away from RMIT, University of Melbourne, Flagstaff Gardens, Melbourne Central, Bourke Street Mall, Southern Cross Station and some of Melbourne's best cafes, restaurants and entertainment venues.
This fully furnished studio apartment is quick to set the benchmark for convenient inner city living, offering an environmentally sustainable design, modern appliances, dishwasher, split system, security entrance with intercom system and access to private balcony. Extra features include: Stainless steel appliances, dishwasher, split system heating/cooling, Security entrance with intercom and private balcony.
Embrace an unmatched lifestyle at the heart of Melbourne's vibrant landscape!
"Distance" refers to the straight line between the property and the school address on our database. We recommend contacting schools directly regarding zoning and admissions.
One moment while I search our listings...