
Demi Georga
Business Development Director - South Morang Office
**Scheduling your property inspection is now a breeze! Simply click on the "Book an Inspection" or "Request a Time" button to secure your appointment. You'll instantly receive a confirmation and be kept up-to-date with any alterations or cancellations concerning your scheduled visit. Please be aware, inspections may be subject to cancellation if no bookings are registered. Make your booking today and take the first step in finding your ideal home**
** ACCESS FOR OPENS: Please direct to 1016 Edgars Road, and park near other cars (Cielo Lane). Please walk down the lane, turn left (Solstice Road), and look for the agent at number 14. A map image has been provided on the second last page for directions.
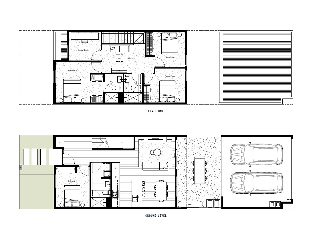
Welcome to this modern and spacious four-bedroom townhouse offering exceptional comfort, practicality, and style across two well-designed levels. Perfectly positioned in a growing pocket of Wollert, this home delivers generous living zones, quality finishes, and a layout ideal for families or shared living.
The ground floor features an inviting open-plan kitchen, meals, and living area that flows seamlessly to the outdoor space, perfect for entertaining or relaxing. The kitchen is well appointed with stainless steel appliances, a dishwasher, ample pantry storage, and a functional design suited for everyday living. A fully equipped bedroom on the ground level, complete with its own adjoining bathroom, provides ideal accommodation for guests, extended family, or those seeking ground-floor convenience. Internal access from the spacious double garage adds further ease and security.
Upstairs, the home continues to impress with a dedicated retreat, ideal as a second living zone or quiet relaxation space. Three additional well-sized bedrooms, including a master suite with its own bathroom, ensure comfort for the whole family. A study nook is also included and perfect for working from home or student needs. A central bathroom with modern finishes completes the upper level.
Additional features include a separate laundry, excellent storage throughout, outdoor open space, and a thoughtfully designed floor plan providing over 180m² of internal living plus garage and exterior areas.
Located moments from parks, upcoming town centre precincts, shops, public transport, and quality schools, this property offers a lifestyle of comfort and convenience in one of Wollert’s most sought-after communities.
*It is a requirement to inspect the property prior to applying.
**Inspection times and property availability are subject to change or cancellation without notice. We highly recommend registering for an inspection should you wish to attend to avoid disappointment for any changes or cancellations.
***Whilst AReal Property South Morang has taken care in the preparation of the photos and description of the property, interested person(s) are advised to make their own enquiries and satisfy themselves in all respects of the property they wish to lease.
****Note: Some images used have been virtually staged.
"Distance" refers to the straight line between the property and the school address on our database. We recommend contacting schools directly regarding zoning and admissions.
One moment while I search our listings...