
Demi Georga
Business Development Director - South Morang Office
**Scheduling your property inspection is now a breeze! Simply click on the "Book an Inspection" or "Request a Time" button to secure your appointment. You'll instantly receive a confirmation and be kept up-to-date with any alterations or cancellations concerning your scheduled visit. Please be aware, inspections may be subject to cancellation if no bookings are registered. Make your booking today and take the first step in finding your ideal home**
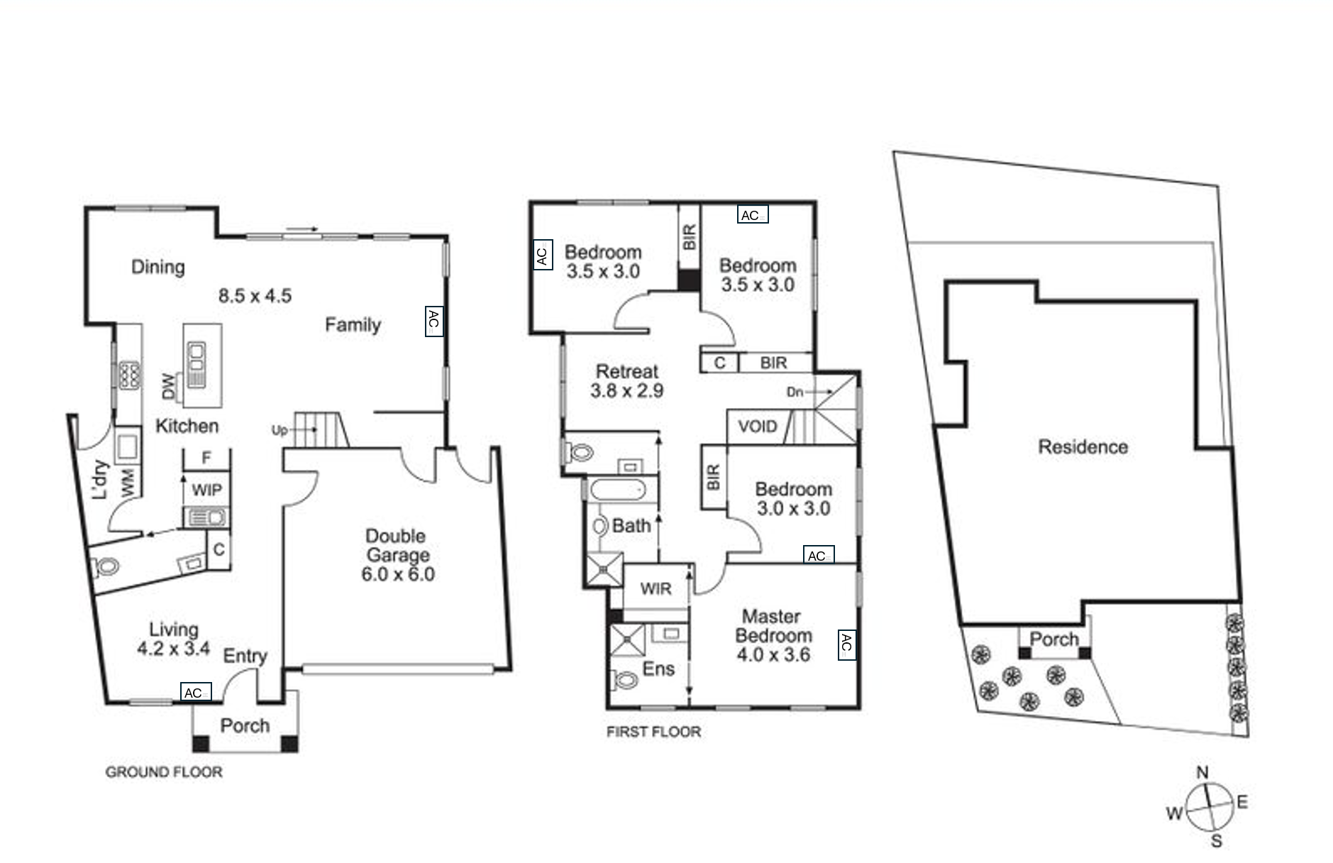
Set in a quiet and family-friendly court, this spacious four-bedroom home offers comfortable and convenient living in an ideal location. Perfectly maintained and thoughtfully designed, it provides an excellent lifestyle for families seeking both space and ease.
Inside, the home is equipped for year-round comfort with ducted heating, evaporative cooling, and six split-system air conditioning units installed throughout all bedrooms and living areas, ensuring personalised temperature control for everyone. Each room is designed with practicality in mind, making daily living comfortable and enjoyable.
The outdoor space has been created for low-maintenance living, featuring a fully tiled backyard and synthetic turf that stays green year-round. It’s the perfect place for kids to play or for entertaining without the upkeep.
Additional features include a state-of-the-art 8-camera CCTV system surrounding the property for enhanced security, as well as a 6.6kW solar system with 15 panels to help keep energy costs down.
This well-appointed home combines comfort, efficiency, and peace of mind—all in a highly sought-after South Morang location.
DISCLAIMERS
*It is a requirement to inspect the property prior to applying.
**Inspection times and property availability are subject to change or cancellation without notice. We highly recommend registering for an inspection should you wish to attend to avoid disappointment for any changes or cancellations.
***Whilst AReal Property South Morang has taken care in the preparation of the photos and description of the property, interested person(s) are advised to make their own enquiries and satisfy themselves in all respects of the property they wish to lease.
****Note: Some images used have been virtually staged.
"Distance" refers to the straight line between the property and the school address on our database. We recommend contacting schools directly regarding zoning and admissions.
One moment while I search our listings...