
Mike Lu
Relationship Manager
**Scheduling your property inspection is now a breeze! Simply click on the "Book an Inspection" or "Request a Time" button to secure your appointment. You'll instantly receive a confirmation and be kept up-to-date with any alterations or cancellations concerning your scheduled visit. Please be aware, inspections may be subject to cancellation if no bookings are registered. Make your booking today and take the first step in finding your ideal home**
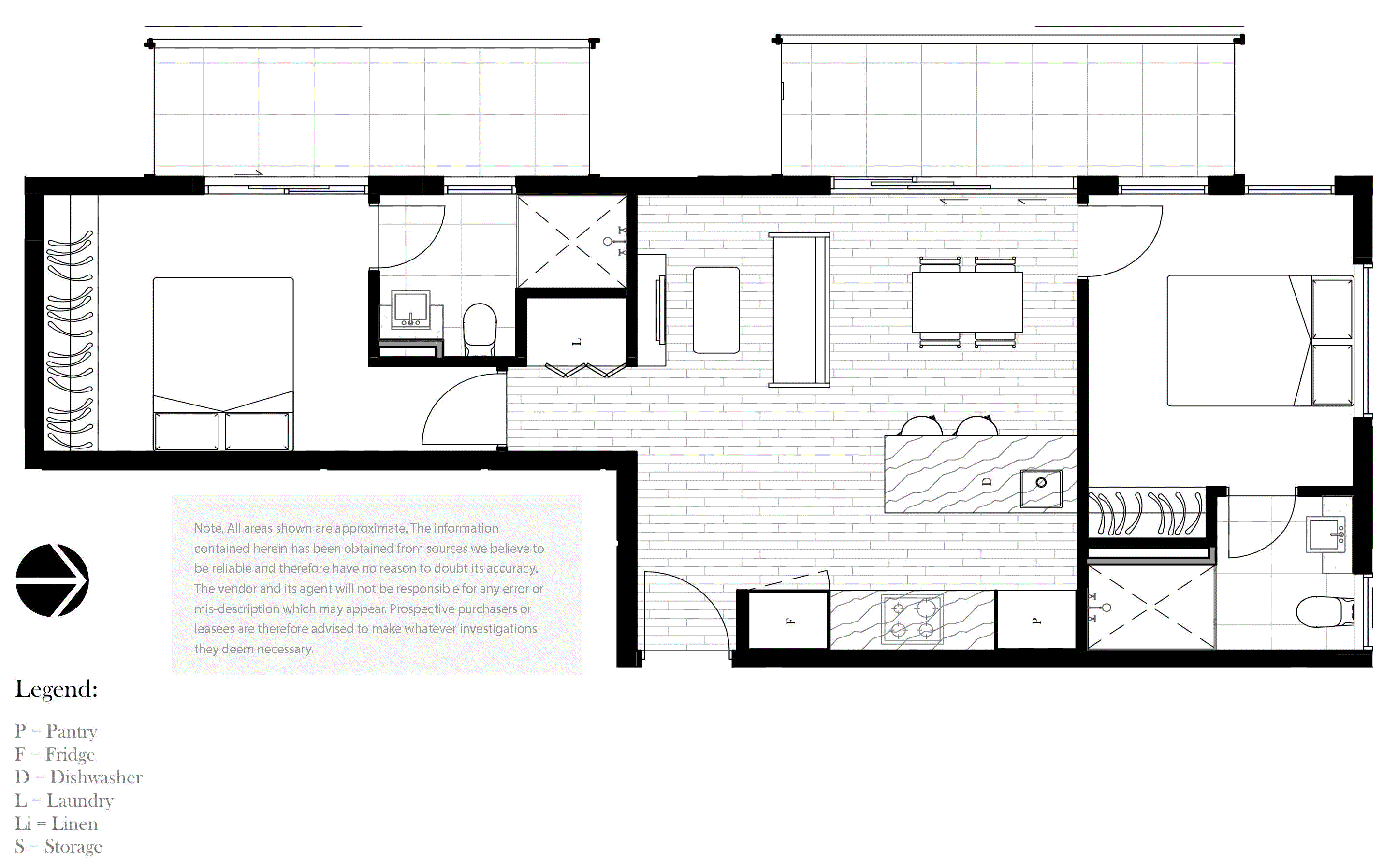
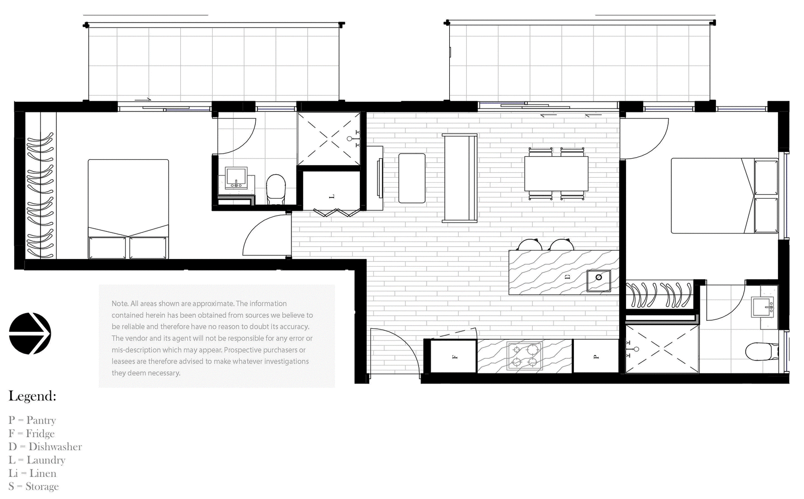
Effortlessly blending contemporary style with a premium lifestyle, this beautifully designed apartment offers the perfect mix of sophistication, comfort, and convenience—just steps from the vibrant Glenferrie Road precinct.
Bathed in natural light and enhanced by sleek floorboards, the open-plan living, dining, and kitchen area showcases modern elegance. High-end stone benchtops, stainless steel appliances, and an integrated dishwasher add a touch of luxury, while floor-to-ceiling windows extend the living space to a private balcony—perfect for relaxing or entertaining in style.
The master bedroom is a serene retreat, featuring a mirrored built-in robe and a private ensuite, while the second bedroom is equally well-appointed with mirrored built-in robes. Additional highlights include split-system heating/cooling, intercom entry, and secure basement parking.
Positioned in a highly sought-after location, this residence is moments from Melbourne’s top schools, including Xavier College, Trinity Grammar, Carey Grammar, and MLC. With Glenferrie Road’s cafés, fine dining, boutiques, trams, trains, and Swinburne University at your doorstep, this is an opportunity to embrace the best of city-fringe living.
"Distance" refers to the straight line between the property and the school address on our database. We recommend contacting schools directly regarding zoning and admissions.
One moment while I search our listings...