209/243 Franklin Street

Melbourne
Bedrooms 1
Bathrooms 1
Parking 0
$400 per Week
Leased on 05 Oct 2023
Property Information
Category
Apartment
Bedrooms
1
Bathrooms
1
Available
Now
Bond
$1739

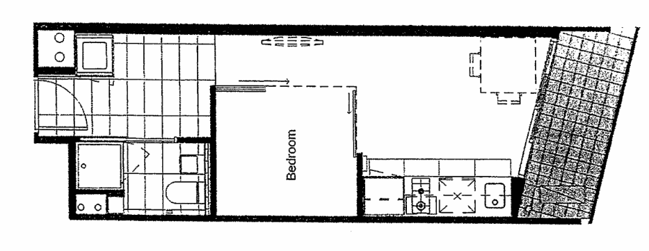
FULLY FURNISHED STUDIO APARTMENT

**Scheduling your property inspection is now a breeze! Simply click on the "Book an Inspection" or "Request a Time" button to secure your appointment. You'll instantly receive a confirmation and be kept up-to-date with any alterations or cancellations concerning your scheduled visit. Please be aware, inspections may be subject to cancellation if no bookings are registered. Make your booking today and take the first step in finding your ideal home**

Situated in a highly sought-after location directly opposite the famous Queen Victoria Market, this fully furnished One Bedroom apartment in Franklin Street is only a few minutes away from RMIT, University of Melbourne, Flagstaff Gardens, Melbourne Central, Bourke Street Mall, Southern Cross Station and some of Melbourne's best cafes, restaurants and entertainment venues.

This fully furnished studio apartment is quick to set the benchmark for convenient inner city living, offering an environmentally sustainable design, modern appliances, dishwasher, split system, laundry including washing machine & dryer, LCD T.V, security entrance with intercom, access to private balcony and bike storage.

Embrace an unmatched lifestyle at the heart of Melbourne's vibrant landscape!

Nearby schools in and around Melbourne

River Nile School
Special
0.54 km
 
Simonds Catholic College
Secondary
0.60 km
 
St Joseph's Flexible Learning Centre
Special
0.71 km
 
Ozford College
Secondary
1.29 km
 
North Melbourne Primary School
Primary
1.39 km
Catchment
University High School
Secondary
1.39 km
Catchment
Stott's Colleges
Secondary
1.53 km
 
Carlton Gardens Primary School
Primary
1.62 km
 
Holmes Grammar School
Secondary
1.70 km
 
Docklands Primary School
Primary
1.72 km
 

"Distance" refers to the straight line between the property and the school address on our database. We recommend contacting schools directly regarding zoning and admissions.

You also might like

More

Thinking...

One moment while I search our listings...

How Can We Help?