502/243 Franklin Street

Melbourne
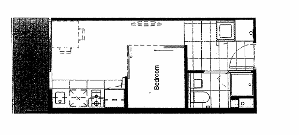
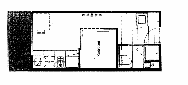
Bedrooms 1
Bathrooms 1
Parking 0
$420 per Week
Leased on 06 Jul 2023
Property Information
Category
Apartment
Bedrooms
1
Bathrooms
1
Available
Now
Bond
$1825

Prime City Living Opposite Queen Victoria Market

FULLY FURNISHED ONE BEDROOM ONE BATHROOM APARTMENT

**Scheduling your property inspection is now a breeze! Simply click on the "Book an Inspection" or "Request a Time" button to secure your appointment. You'll instantly receive a confirmation and be kept up-to-date with any alterations or cancellations concerning your scheduled visit. Please be aware, inspections may be subject to cancellation if no bookings are registered. Make your booking today and take the first step in finding your ideal home**

Immerse yourself in the heart of Melbourne with this elegantly furnished one-bedroom, one-bathroom apartment on Franklin Street. Positioned directly opposite the iconic Queen Victoria Market, the convenience doesn’t stop there. Within a short stroll, you'll find esteemed institutions like RMIT and the University of Melbourne, the tranquil Flagstaff Gardens, bustling Melbourne Central, Bourke Street Mall, and Southern Cross Station. Round out your urban experience with an array of Melbourne's finest cafes, restaurants, and entertainment hotspots nearby.

Crafted with city dwellers in mind, this apartment stands as a paragon of sustainable yet convenient urban living. Inside, discover a suite of modern appliances complemented by a dishwasher for easy meals. Comfort is a priority with a split system for both heating and cooling, and the included laundry setup features both a washing machine and dryer. Entertainment is just a button away with an LCD T.V, and for added security, an intercom system is in place. Step out onto your private balcony for moments of reflection or store your bike after a city ride in the dedicated storage area.

Enhance your Melbourne experience with this ideally located haven.

*Photos are not of actual property however are a representation of the property based on a similar floorplan, its features and age*

Nearby schools in and around Melbourne

River Nile School
Special
0.54 km
 
Simonds Catholic College
Secondary
0.60 km
 
St Joseph's Flexible Learning Centre
Special
0.71 km
 
Ozford College
Secondary
1.29 km
 
North Melbourne Primary School
Primary
1.39 km
Catchment
University High School
Secondary
1.39 km
Catchment
Stott's Colleges
Secondary
1.53 km
 
Carlton Gardens Primary School
Primary
1.62 km
 
Holmes Grammar School
Secondary
1.70 km
 
Docklands Primary School
Primary
1.72 km
 

"Distance" refers to the straight line between the property and the school address on our database. We recommend contacting schools directly regarding zoning and admissions.

You also might like

More

Thinking...

One moment while I search our listings...

How Can We Help?