505/243 Franklin Street

Melbourne
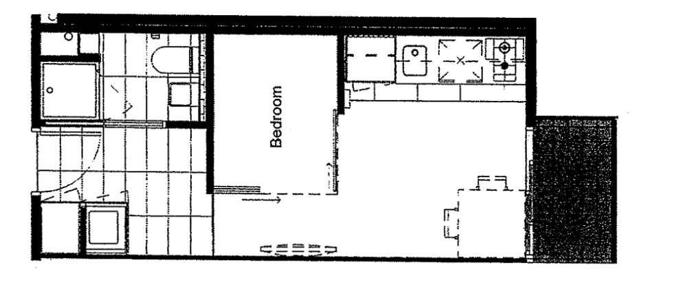
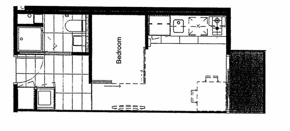
Bedrooms 1
Bathrooms 1
Parking 0
$385 per Week
Leased on 09 Jun 2023
Property Information
Category
Apartment
Bedrooms
1
Bathrooms
1
Available
Now
Bond
$1673

Prime City Living Opposite Queen Victoria Market

FULLY FURNISHED ONE BEDROOM ONE BATHROOM APARTMENT

**Scheduling your property inspection is now a breeze! Simply click on the "Book an Inspection" or "Request a Time" button to secure your appointment. You'll instantly receive a confirmation and be kept up-to-date with any alterations or cancellations concerning your scheduled visit. Please be aware, inspections may be subject to cancellation if no bookings are registered. Make your booking today and take the first step in finding your ideal home**

Discover the epitome of urban sophistication in this fully furnished one-bedroom, one-bathroom apartment on Franklin Street, strategically located right opposite the iconic Queen Victoria Market. The heartbeat of the city is at your doorstep with RMIT, the University of Melbourne, Flagstaff Gardens, Melbourne Central, Bourke Street Mall, and Southern Cross Station just minutes away. A diverse array of Melbourne's celebrated cafes, restaurants, and entertainment venues further enriches the locale.

This apartment redefines convenient inner-city living. Crafted with an environmentally conscious design, it's adorned with contemporary stainless steel appliances, a practical dishwasher, and an efficient split heating and cooling system. Modern living essentials are seamlessly integrated, from the laundry space equipped with both washing machine and dryer, to the crisp visuals of the LCD T.V. Residents' safety and privacy are prioritized with a secure entrance featuring an intercom system. Beyond the indoors, a tranquil private balcony offers a personal outdoor retreat, while a designated bike storage caters to the city's cycling enthusiasts.

Embrace an unparalleled lifestyle in the heart of Melbourne.

*Photos are not of actual property however are a representation of the property based on a similar floorplan, its features and age*

Nearby schools in and around Melbourne

River Nile School
Special
0.54 km
 
Simonds Catholic College
Secondary
0.60 km
 
St Joseph's Flexible Learning Centre
Special
0.71 km
 
Ozford College
Secondary
1.29 km
 
North Melbourne Primary School
Primary
1.39 km
Catchment
University High School
Secondary
1.39 km
Catchment
Stott's Colleges
Secondary
1.53 km
 
Carlton Gardens Primary School
Primary
1.62 km
 
Holmes Grammar School
Secondary
1.70 km
 
Docklands Primary School
Primary
1.72 km
 

"Distance" refers to the straight line between the property and the school address on our database. We recommend contacting schools directly regarding zoning and admissions.

You also might like

More

Thinking...

One moment while I search our listings...

How Can We Help?