609/243 Franklin Street

Melbourne
Bedrooms 1
Bathrooms 1
Parking 0
$350 per Week
Leased on 23 Aug 2022
Property Information
Category
Apartment
Bedrooms
1
Bathrooms
1
Available
Now
Bond
$1521

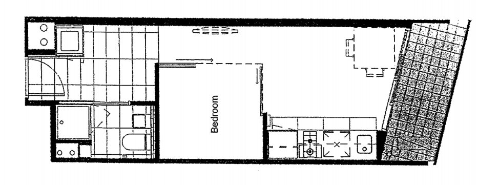
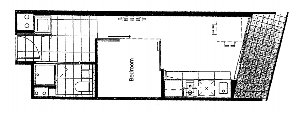
FULY FURNISHED STUDIO IN THE HEART OF CBD!

Situated in a highly sought-after location directly opposite the famous Queen Victoria Market, this fully furnished Studio apartment in Franklin Street is only a few minutes away from RMIT, University of Melbourne, Flagstaff Gardens, Melbourne Central, Bourke Street Mall, Southern Cross Station and some of Melbourne's best cafes, restaurants and entertainment venues.

This apartment is quick to set the benchmark for convenient inner city living, offering an environmentally sustainable design, modern appliances, dishwasher, split system, security entrance with intercom system and access to private balcony.

This Property Features:
- Stainless steel appliances
- Dishwasher
- Split system heating/cooling
- Security entrance with intercom
- Private balcony

Arranging an inspection is easy. Click on "Book an Inspection Time" or "Email Agent" to book a time to inspect. By registering, you will be receiving any updates, changes or cancellations.

*Photos are not of actual property however are a representation of the property based on a similar floorplan, its features and age*

Nearby schools in and around Melbourne

River Nile School
Special
0.54 km
 
Simonds Catholic College
Secondary
0.60 km
 
St Joseph's Flexible Learning Centre
Special
0.71 km
 
Ozford College
Secondary
1.29 km
 
North Melbourne Primary School
Primary
1.39 km
Catchment
University High School
Secondary
1.39 km
Catchment
Stott's Colleges
Secondary
1.53 km
 
Carlton Gardens Primary School
Primary
1.62 km
 
Holmes Grammar School
Secondary
1.70 km
 
Docklands Primary School
Primary
1.72 km
 

"Distance" refers to the straight line between the property and the school address on our database. We recommend contacting schools directly regarding zoning and admissions.

You also might like

More

Thinking...

One moment while I search our listings...

How Can We Help?