
Demi Georga
Business Development Director - South Morang Office
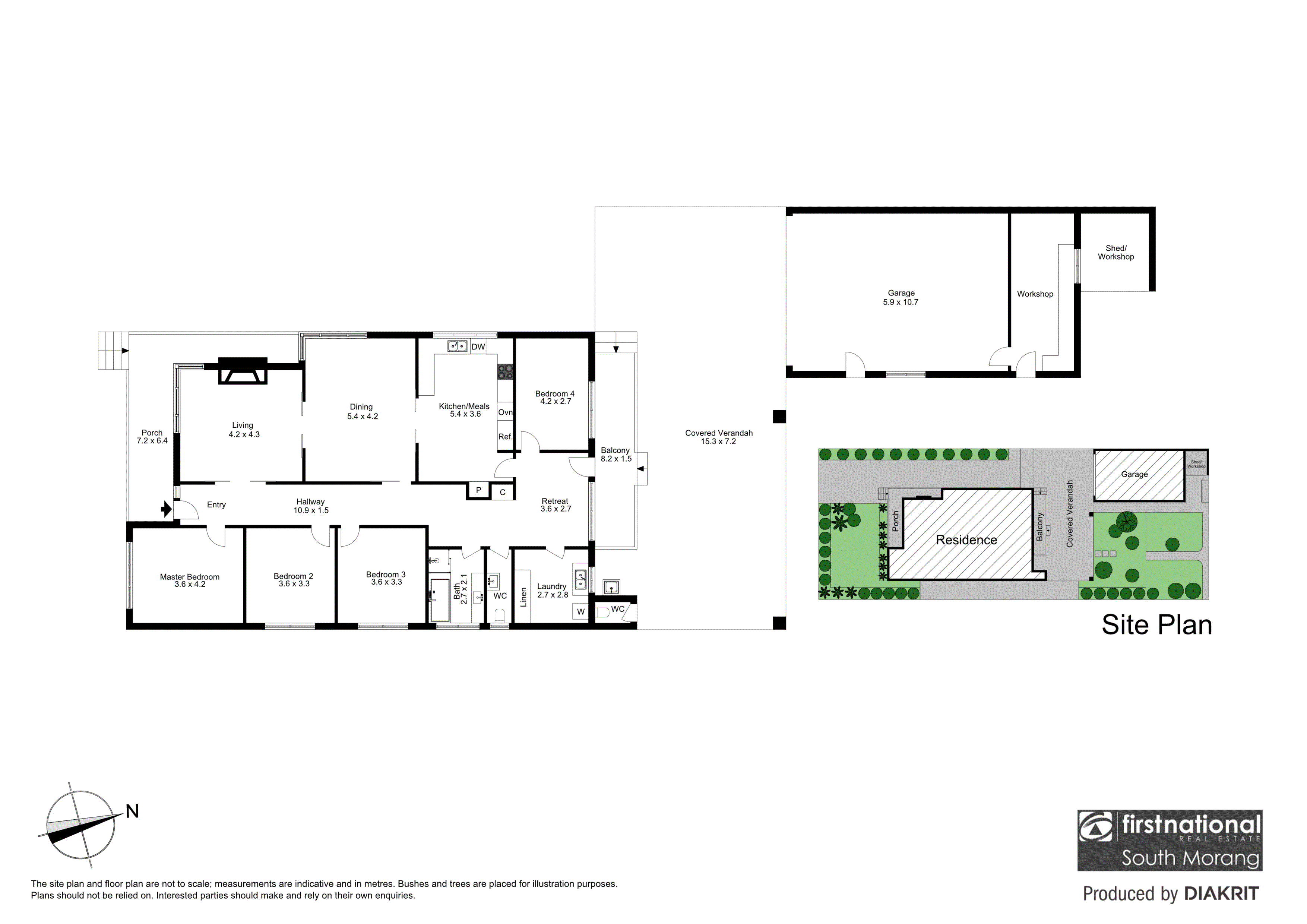
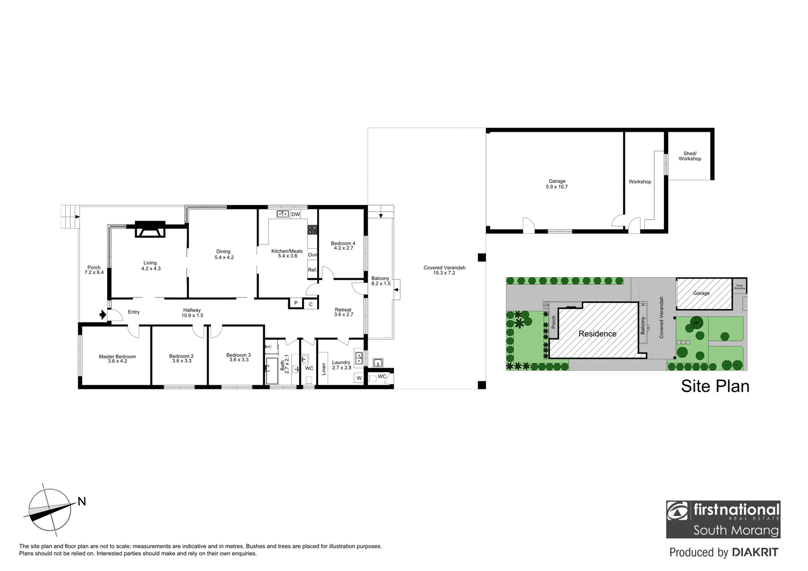
With schools, parks, shops and amenities at your fingertips, a life of convenience is assured for the lucky new owners of this charming Reservoir home. Four bedrooms offer space for everyone to spread out and relax plus there are multiple living areas to suit every mood and occasion.
A cosy heater warms the light-filled living room while those who love to host guests can gather in absolute comfort in the large dining room. An open-plan kitchen and meals area is ready for the eager chef with ample storage, sweeping benchtops and quality appliances that will make cooking for loved ones a breeze.
Completing the floorplan is a bonus retreat space, a well-appointed laundry and an external water closet. Entertaining friends will be a joy on the expansive covered rear verandah with views out over the private backyard. A large two car garage, with a workshop and shed, adds to the appeal of this impressive home.
DISCLAIMERS
*It is a requirement to inspect the property prior to applying.
**Inspection times and property availability are subject to change or cancellation without notice. We highly recommend registering for an inspection should you wish to attend to avoid disappointment for any changes or cancellations.
***Whilst First National South Morang has taken care in the preparation of the photos and description of the property, interested person(s) are advised to make their own enquiries and satisfy themselves in all respects of the property they wish to lease.
****Note: Some of these images have been virtually staged.
"Distance" refers to the straight line between the property and the school address on our database. We recommend contacting schools directly regarding zoning and admissions.
One moment while I search our listings...