
Joshua Hellyer
Relationship Manager
IMPORTANT COVID-19 INFO REGARDING OPEN HOMES:
Open for Inspections Schedule: Every Saturday and Private Inspection upon request (please register and get the confirmation booking)
Contemporary by design and very quiet inside due to solid building, this spectacular two bedroom, two bathroom, two level apartment will impress - Simple as that! Situated in Richmond, this hidden gem offers the very best of inner city living.
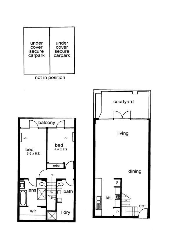
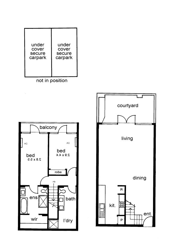
Downstairs comprises of a large modern gourmet kitchen, gas stove, dishwasher, abundance of storage and bench space, heating/cooling and a large open plan lounge/living opening onto a large private courtyard.
Venture upstairs to find two generously sized bedrooms, master with walk in robe and Ensuite with bath, second bedroom with built in robes and central bathroom, split system in both bedrooms and access to the balcony!
We believe this is one of the most impressive properties around, complete with 2 underground car parks, security entrance and video intercom!
When choosing to call this place home, you will be located seconds from all Bridge Road has to offer, the beautiful parks and gardens of East Melbourne and a hop skip and a jump to West Richmond Station.
DISCLAIMER: Photos are for advertising purposes only. Actual apartment layout may differ.
Property Code: 5020
"Distance" refers to the straight line between the property and the school address on our database. We recommend contacting schools directly regarding zoning and admissions.
One moment while I search our listings...