2908/22 Jane Bell Lane

Melbourne
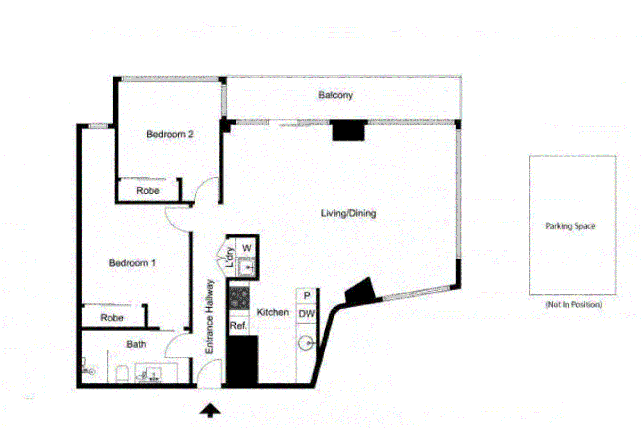
Bedrooms 2
Bathrooms 1
Parking 1
$760 per Week
Leased on 06 Jun 2025
Resources
PDF Brochure
Property Information
Category
Apartment
Bedrooms
2
Bathrooms
1
Carports
1
Available
Now
Bond
$3303

Stunning Corner Apartment with Breathtaking Views in the Heart of QV Precinct

**Scheduling your property inspection is now a breeze! Simply click on the "Book an Inspection" or "Request a Time" button to secure your appointment. You'll instantly receive a confirmation and be kept up-to-date with any alterations or cancellations concerning your scheduled visit. Please be aware, inspections may be subject to cancellation if no bookings are registered. Make your booking today and take the first step in finding your ideal home**

Perched high on the 29th floor, this spacious and light-filled corner apartment offers the perfect combination of modern living and unbeatable convenience in one of Melbourne’s most dynamic lifestyle hubs.

Thoughtfully designed, the apartment features two generously sized, carpeted bedrooms—both with windows offering natural light and city outlooks. The main bedroom enjoys direct access to the central bathroom, enhancing privacy and functionality, while the second bedroom is bathed in natural light, making it an ideal space for a guest room, home office, or retreat.

The sleek kitchen is fitted with quality stainless steel European appliances and flows into a spacious open-plan living and dining area. Floor-to-ceiling windows allow natural light to fill the space and open onto a large private balcony—perfect for entertaining or relaxing with sweeping 29th-floor city views.

Additional features include a stylish bathroom with a marble vanity, a discreet European laundry, and secure off-street parking for one vehicle. Residents also enjoy access to exclusive rooftop amenities, including a swimming pool and fully equipped gym—both offering spectacular views across the city skyline.

Perfectly located directly above QV Shopping Centre, you’ll have direct access to supermarkets, boutique retail, cafes, restaurants, and entertainment—all just an elevator ride away. Step outside and enjoy short walks to the State Library of Victoria, Carlton Gardens, RMIT University, Melbourne Central, Chinatown, and the iconic Paris End of Collins Street.

Public transport couldn’t be more convenient, with free trams at your doorstep and Melbourne Central and Parliament stations only minutes away. You're surrounded by the very best of Melbourne’s dining, nightlife, and culture—making this an unbeatable base for vibrant inner-city living.

Nearby schools in and around Melbourne

Ozford College
Secondary
0.29 km
 
Stott's Colleges
Secondary
0.53 km
 
Holmes Grammar School
Secondary
0.70 km
 
Carlton Gardens Primary School
Primary
0.98 km
Catchment
Academy of Mary Immaculate
Secondary
1.17 km
 
River Nile School
Special
1.34 km
 
St Joseph's Flexible Learning Centre
Special
1.45 km
 
Simonds Catholic College
Secondary
1.53 km
 
Carlton Primary School
Primary
1.58 km
 
Sacred Heart School
Primary
1.65 km
 

"Distance" refers to the straight line between the property and the school address on our database. We recommend contacting schools directly regarding zoning and admissions.

You also might like

More

Thinking...

One moment while I search our listings...

How Can We Help?