128/2 Golding Street

Hawthorn
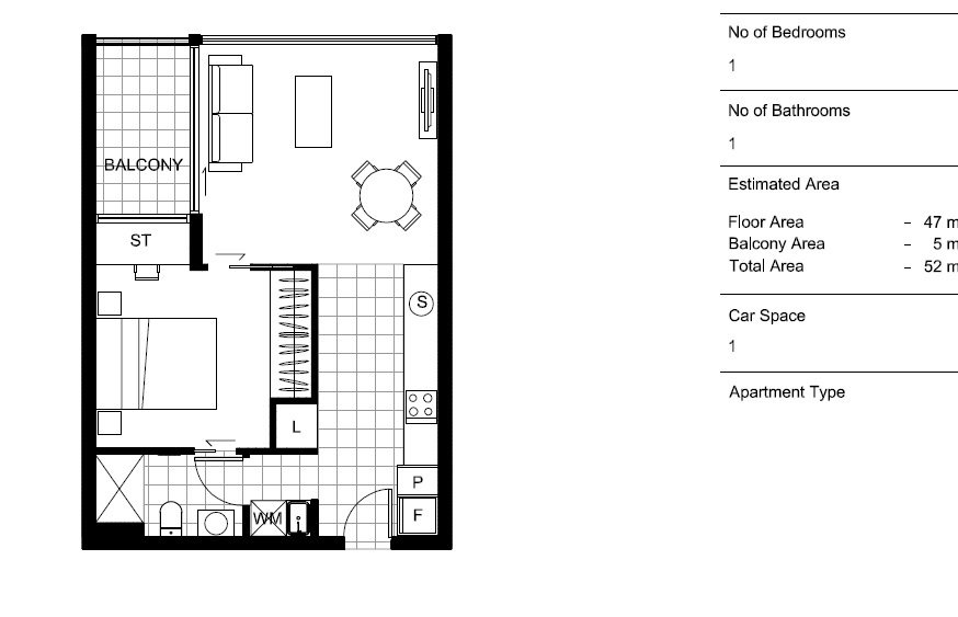
Bedrooms 1
Bathrooms 1
Parking 1
$370 per Week
Leased on 20 Feb 2019
Property Information
Category
Apartment
Bedrooms
1
Bathrooms
1
Garages
1
Available
Now
Bond
$1608
Air Conditioning
Balcony
Built-In Robes
Dishwasher
Pay TV

Stunning 1 Bedroom in the Heart of Hawthorn

Open for Inspection: Saturday, 9th of February at 09:00 AM - 09:15 AM

Please register to inspect this property. When inspection times are scheduled/changed or the property is no longer available, only those registered will be advised.

Enter from Golding Street Entrance.

Looking to establish yourself in Hawthorn? A truly luxurious apartment that really does tick all the boxes!

Featuring premium fittings and fixtures throughout, stylish mixtures of carpet and tiles, great sized living space with plenty of natural light, bedroom with BIRs and a study desk, fully equipped kitchen with stone bench tops and stainless steel European appliances, Sparkling modern bathroom, separate laundry and floor to ceiling glass doors leading to ample balcony boasting spectacular views.

Building facilities include secured entry, two luxurious lobbies complete with high ceilings and warm lighting, on-site building management, bicycle racks, secure car parking and storage cages and last but not least the beautiful 850sqm Atrium Garden featuring four separately zoned areas defined by warm timber decking for relaxing and entertaining, flexible seating options and the perfect blend of greenery, useable and open space to create a cosy yet spacious contemporary outdoor feel.

Ideally located in the heart of Hawthorn, surrounded by public transport, shopping, cafes, restaurants, parklands, schools & Universities and all the many other amenities this progressive and lively suburb has on offer.

*TO APPLY, you must INSPECT the property FIRST. It’s easy, simply click on EMAIL AGENT, enter your details and receive instant details of the next inspection time.

DISCLAIMER: Photos are for advertising purposes only. Actual apartment layout may differ.

Property Code: 4010

Nearby schools in and around Hawthorn

Glenferrie Primary School
Primary
0.24 km
Catchment
St Joseph's School
Primary
0.51 km
 
Erasmus Primary School
Primary
0.58 km
 
Rossbourne School
Special
0.72 km
 
Swinburne Senior Secondary College
Secondary
0.88 km
Catchment
Xavier College
Combined
0.94 km
 
Methodist Ladies' College
Combined
1.01 km
 
Scotch College
Combined
1.31 km
 
Trinity Grammar School Kew
Combined
1.35 km
 
Ruyton Girls' School
Combined
1.37 km
 

"Distance" refers to the straight line between the property and the school address on our database. We recommend contacting schools directly regarding zoning and admissions.

You also might like

More

Thinking...

One moment while I search our listings...

How Can We Help?