4/229 Auburn Road

Hawthorn
Bedrooms 3
Bathrooms 2
Parking 2
$920 per Week
Leased on 01 Oct 2021
Property Information
Category
Townhouse
Bedrooms
3
Bathrooms
2
Garages
2
Available
Now
Bond
$3998

ONE OF A KIND EXECUTIVE STYLE LUXURIOUS TOWNHOUSE IN PRIME HAWTHORN

Open for Inspection Schedule: TBA

COVID OPEN RULES: Inspection times are strictly by appointment only, you must register prior to view the property.

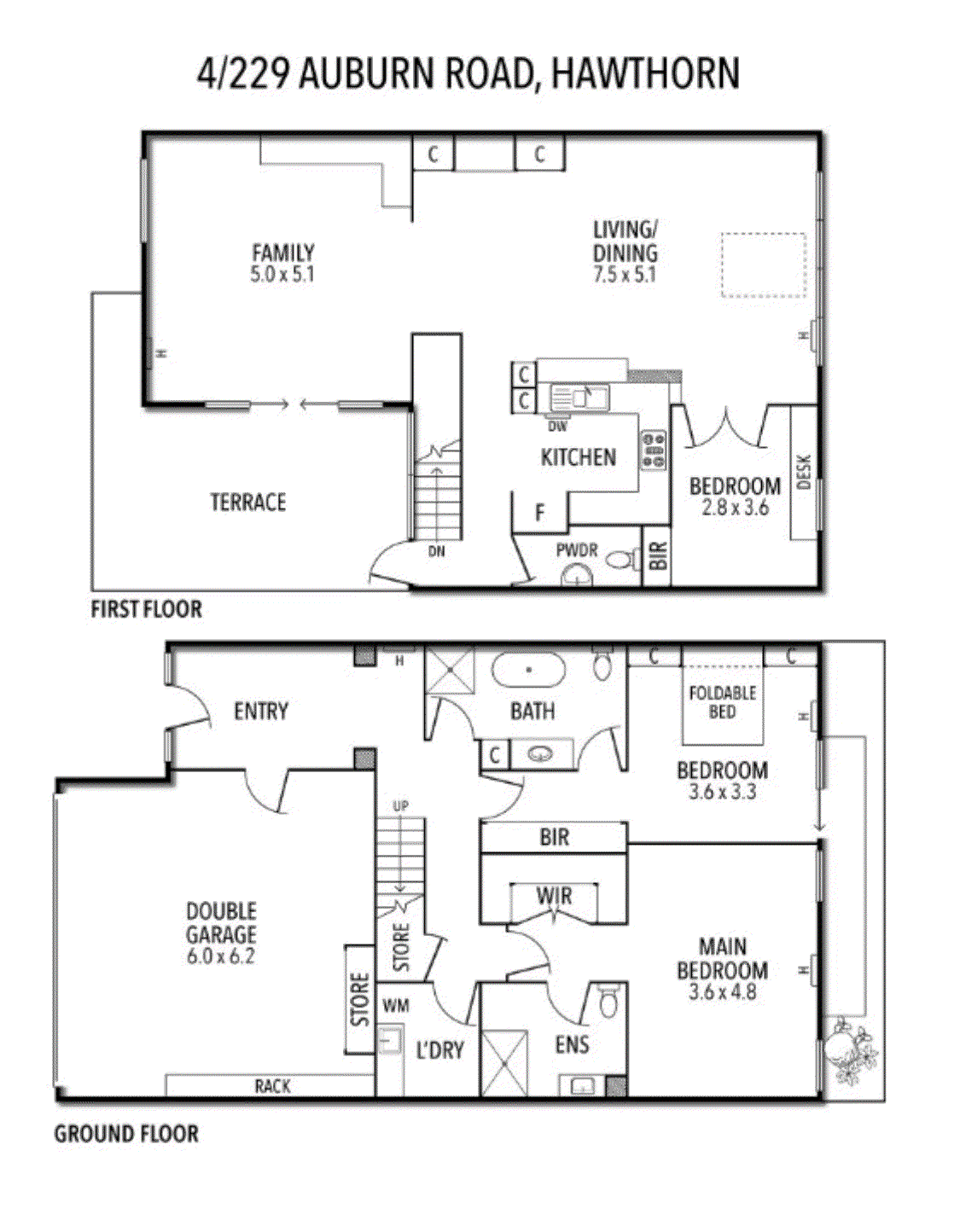
From the statement entrance, massive oval bathtub, to immaculate living, dining, family, and terrace areas, this 3-bedroom townhouse may just be that place you’ve been waiting to call home. Whether you are working from the office or from home, this beautiful house accommodates all your needs with a thoughtful and well-planned layout allowing you to indulge in a truly modern and comfortable lifestyle in the heart of Boroondara.

Main features include:
- Beautiful grandeur entrance with quality Italian tiles
- Massive lounge/family/dining space totaling 5 x 12 meters + on American oak flooring.
- Semi-open plan kitchen featured with 900mm gas cooktop and electric oven, stainless appliances, and dark granite stone benchtop.
- Master bedroom 3.6 x 4.8 m on high-quality hardwood floor, plenty of room for your king-sized bed and more, as the fully equipped luxurious walk-in-robe and ensuite are on either side of walkway.
- Spacious ensuite with immaculate tiling, heating, and full shower.
- 2nd bedroom 3.3 x 3.6m: features a murphy (fold-up bed including a near-new mattress), and built-in robe, allowing ample space and styling options. 3 steps out to the main bathroom, where that big bathtub is!
- Tucked away behind the kitchen is the third bedroom which would equally cater to a home office or study
- Ample storage including built-in set of drawers in the master, built-in TV unit in lounge, study desk in the 3rd bedroom, dining area storage, etc.
- High ceilings and hydronic heating throughout, plus ducted reverse cycle air conditioning, and ducted vacuum cleaning.
- Adjustable remote-controlled roof on the terrace for your everyday BBQ needs and alfresco dining, rain or shine!
- Double garage 6.0 x 6.2 meters with built-in shelves.
- Separate laundry room, upstairs powder room.
- NBN enabled.
- Perfect location that is both very quiet and convenient as unit 4 is tucked away at the end of driveway. 1 min walk to Auburn road's cafes and shops. Close to several prestigious public and private schools

Nearby schools in and around Hawthorn

Swinburne Senior Secondary College
Secondary
0.65 km
Catchment
St Joseph's School
Primary
1.09 km
 
Auburn Primary School
Primary
1.13 km
 
SEDA College (Victoria)
Secondary
1.14 km
 
Glenferrie Primary School
Primary
1.21 km
Catchment
Auburn South Primary School
Primary
1.27 km
 
Auburn High School
Secondary
1.30 km
Catchment
Erasmus Primary School
Primary
1.41 km
 
Carey Baptist Grammar School
Combined
1.44 km
 
Scotch College
Combined
1.45 km
 

"Distance" refers to the straight line between the property and the school address on our database. We recommend contacting schools directly regarding zoning and admissions.

You also might like

More

Thinking...

One moment while I search our listings...

How Can We Help?