
Ranjit Singh
Senior Relationship Manager
**Scheduling your property inspection is now a breeze! Simply click on the "Book an Inspection" or "Request a Time" button to secure your appointment. You'll instantly receive a confirmation and be kept up-to-date with any alterations or cancellations concerning your scheduled visit. Please be aware, inspections may be subject to cancellation if no bookings are registered. Make your booking today and take the first step in finding your ideal home**
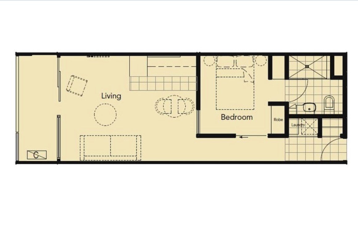
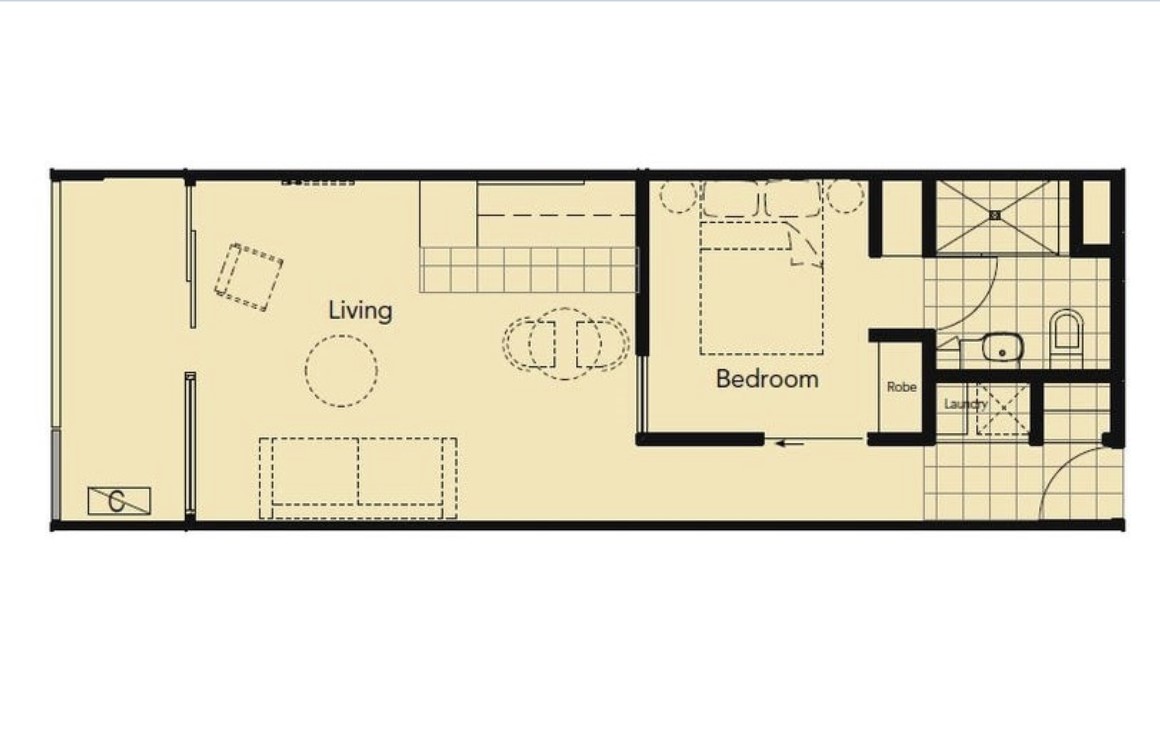
Open plan living flooded with natural light accompanied by split system air conditioning and heating, kitchen with stainless steel appliances, dishwasher, gas cooking, bathroom with European laundry, and an undercover car space.
This building includes a communal rooftop garden equipped with a bbq area, landscaped gardens, and an entertaining area. Also with 2 x lifts for easy access to and from your apartment, an elegant glassed two-story foyer with prize-winning artwork on display, visitor car parks, motorcycle, and bicycle spaces, garbage chutes & a resident on-site building manager.
Environmentally friendly with solar-boosted hot water systems, rainwater harvesting, and more.
Inner City Living! Located only 3.4 kilometers from Melbournes CBD with public transport to and from the city within meters of your apartment - that means less travel time for you. Also, found close to Fitzroy cafes and restaurants.
"Distance" refers to the straight line between the property and the school address on our database. We recommend contacting schools directly regarding zoning and admissions.
One moment while I search our listings...