
Shaun Young
Relationship Manager
**Scheduling your property inspection is now a breeze! Simply click on the "Book an Inspection" or "Request a Time" button to secure your appointment. You'll instantly receive a confirmation and be kept up-to-date with any alterations or cancellations concerning your scheduled visit. Please be aware, that inspections may be subject to cancellation if no bookings are registered. Make your booking today and take the first step in finding your ideal home**
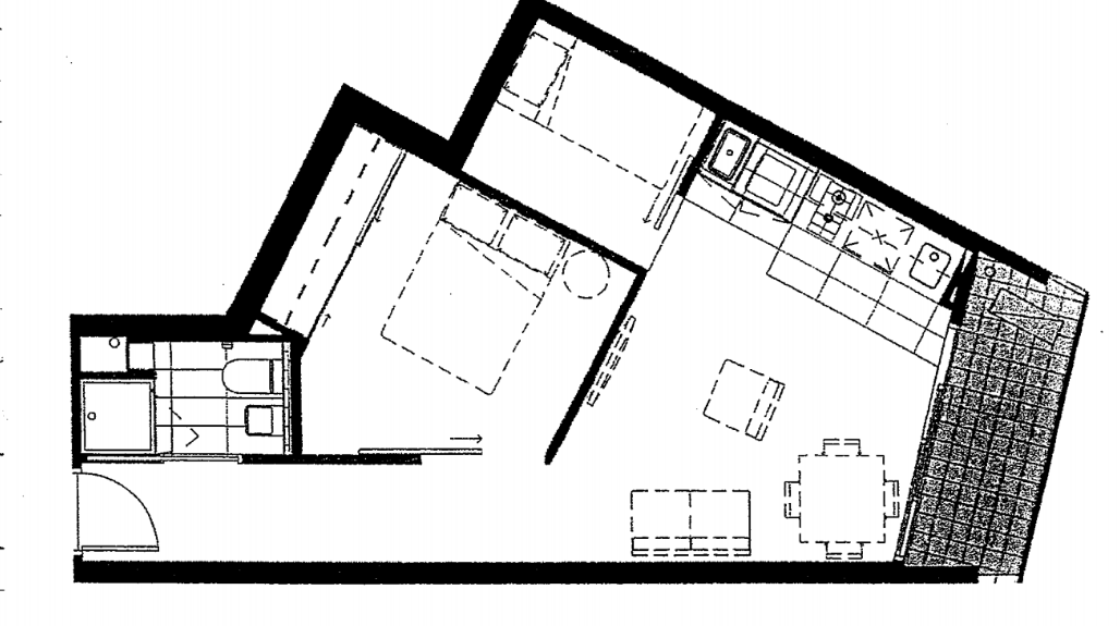
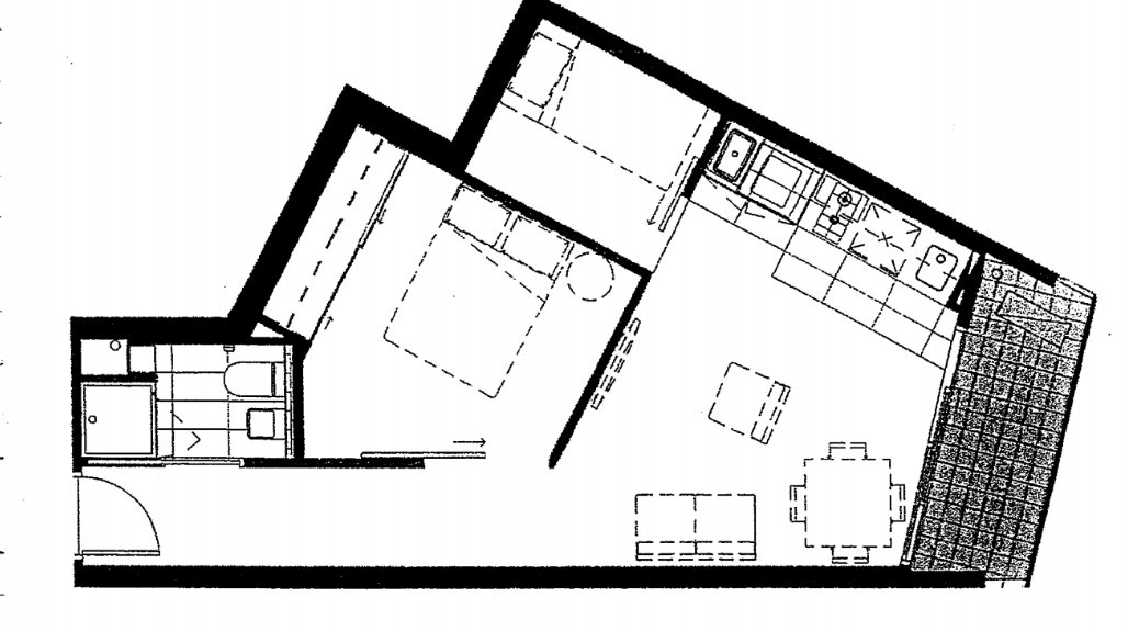
Ideally positioned directly opposite the iconic Queen Victoria Market, this fully furnished two-bedroom, one-bathroom apartment on Franklin Street captures the essence of inner-city living. With RMIT, the University of Melbourne, Flagstaff Gardens, Melbourne Central, Bourke Street Mall, Southern Cross Station, and an array of cafés, restaurants, and entertainment venues just moments away, every convenience is at your doorstep.
Designed with modern living in mind, the apartment offers an environmentally sustainable layout complemented by stylish finishes and quality inclusions. Enjoy the ease of a stone-bench kitchen with modern appliances and dishwasher, open-plan living with split system air conditioning, and your own private balcony. Added comforts include a laundry with washing machine and dryer, LCD TV, secure entry with intercom, and bike storage.
Blending comfort, convenience, and location, this home is the perfect choice for a vibrant city lifestyle.
"Distance" refers to the straight line between the property and the school address on our database. We recommend contacting schools directly regarding zoning and admissions.
One moment while I search our listings...