
Renata Xiang
Business Development Manager
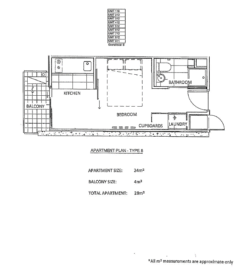
FULLY FURNISHED ONE BEDROOM ONE BATHROOM APARTMENT
**Scheduling your property inspection is now a breeze! Simply click on the "Book an Inspection" or "Request a Time" button to secure your appointment. You'll instantly receive a confirmation and be kept up-to-date with any alterations or cancellations concerning your scheduled visit. Please be aware, inspections may be subject to cancellation if no bookings are registered. Make your booking today and take the first step in finding your ideal home**
Discover urban luxury in this fully furnished one-bedroom, one-bathroom apartment on Franklin Street, enviably located right opposite the renowned Queen Victoria Market. Delight in the proximity to city landmarks such as RMIT, the University of Melbourne, Flagstaff Gardens, Melbourne Central, and Bourke Street Mall. Southern Cross Station is easily accessible, and the best of Melbourne's cafes, restaurants, and entertainment are but a short stroll away.
Designed with a focus on environmental sustainability, this apartment seamlessly blends convenience with modern sophistication. From its state-of-the-art stainless steel appliances and integrated dishwasher to the efficient split heating and cooling system, every detail has been thoughtfully considered. The inclusion of an in-unit laundry with both washing machine and dryer, a crisp LCD T.V, and a secure entrance with an intercom system amplifies the luxury. A private balcony provides a personal escape in the heart of the city, while dedicated bike storage offers practicality for cycling enthusiasts.
Embrace an unmatched lifestyle at the heart of Melbourne's vibrant landscape.
*Photos are not of actual property however are a representation of the property based on a similar floorplan, its features and age*
"Distance" refers to the straight line between the property and the school address on our database. We recommend contacting schools directly regarding zoning and admissions.
One moment while I search our listings...